Flat Lap Panel Details – PDF
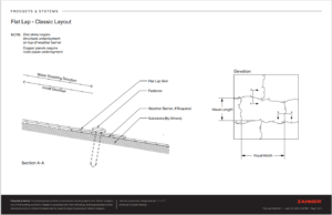
See detail drawings for Zahner’s Flat Lap Panel System.
Detail drawings include: shingle & alternate shingle systems, shingle elevation, flat lap system, flat lap elevation, butt joint system, and butt joint elevation.
File Type:
pdf
File Size:
88 KB
Categories:
Systems



